Wynberg Housing

Location: Wynberg, Cape Town, South Africa

Programme: Affordable housing

Type: Individual design project

Level: BAS 3 semester 2

Supervisor: Karien Trengrove, Bruce Burmeister

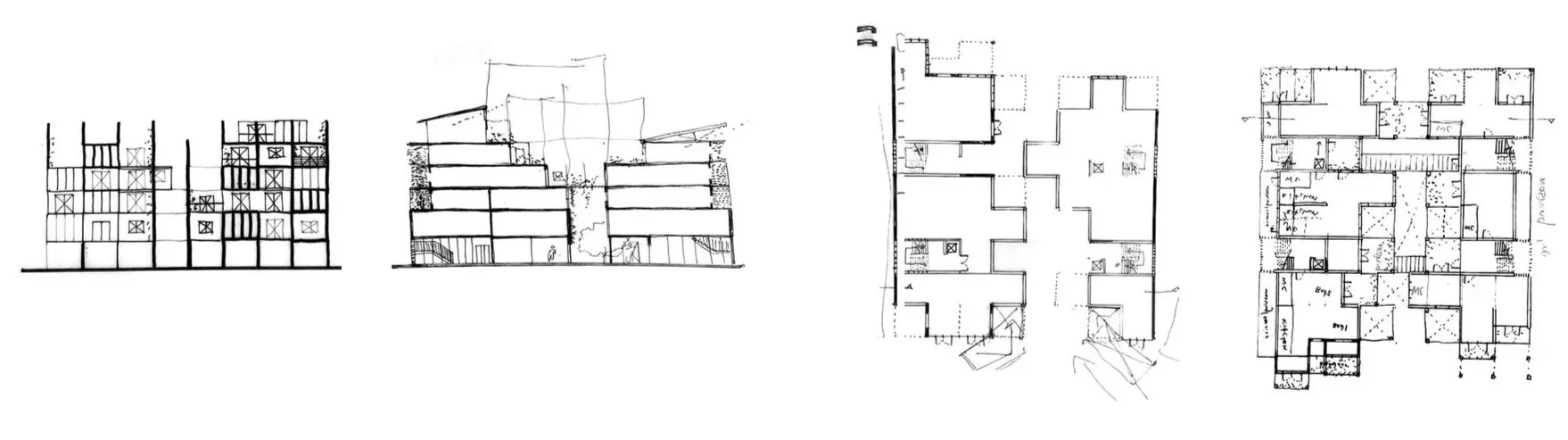
This project investigates the accomodation of affordable housing with mixed-use developments in Cape Town, where both formal and informal trade sectors are accounted for. The proposal explores the material potential of modular design and cross-laminated timber technology to provide a sustainable approach to inner-city building developments in the South African context.	
The design was developed through model building and sketching. The outcome of this process is a modular terraced structure to create a form that would maximise light in all units of the building. The building is also split in two parts to create a walk through-market space  as well as to optimise light gains towards the centre of the building. The grid-like layout informs the circulation and structural elements of the building.

Drawings

Previous
Previous

INTRA_space | 2020