Imizamo Yethu Hub

Location: Imizamo Yethu, Cape Town, RSA

Program: Carpentry Workshop and SIP Distribution Centre, Cape Town

Type: Individual design project (3 weeks)

Level: BAS Hons semester 1

Supervisor: Michael Louw (michael.louw@uct.ac.za)

Studio Glocal examined tensions between global and localized architectural practices in Africa, working across themes of appropriate technology, material hybridity, skill-building, and the politics of making.

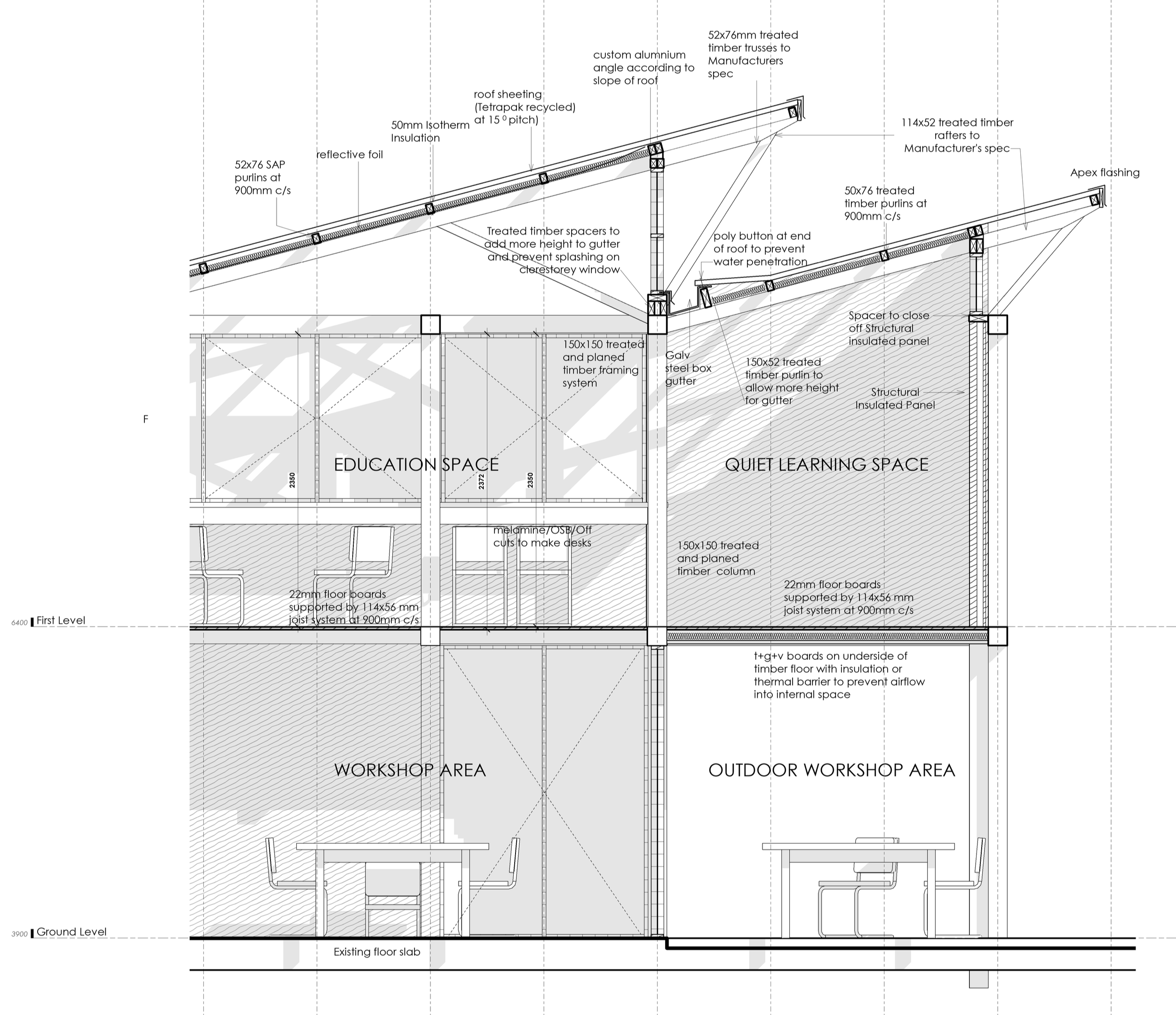
In Imizamo Yethu, an informal settlement near Cape Town, residents construct homes from salvaged corrugated iron and timber offcuts - materials that offer inadequate protection from rain, wind, and fire. The project responds to this material vulnerability by adapting Structural Insulated Panels (SIPs) for resident-led autoconstruction. A carpentry workshop and vocational training facility enables panels to be manufactured, stored, and sold within the community - keeping production local and building technical knowledge in place.

Agency, Abandonment, and the Right to the City

Abdoumaliq Simone's concept of people as infrastructure reframes how informal settlements are understood. In cities across the Global South, residents' movements, transactions, and improvisational practices constitute the infrastructure of the city itself. Imizamo Yethu is already a site of intense social and material production.

Supporting autoconstruction as a form of agency risks absolving the state of its obligation to provide formal housing. Making informal conditions more liveable can make them more permanent. The right to the city means adequate housing, security of tenure, and full participation in urban life - autoconstruction under conditions of scarcity falls short of that.

The project takes a position: that redistributing technical knowledge and productive capacity has value on its own terms, and that residents deserve support for what they are already doing. That position does not stand in for a political demand that remains unmet.

Simone's own warning stays present. Formalization can flatten what was productive precisely because it was fluid. A SIP system, however appropriate, has edges that improvisational urbanism does not. This was a six-week academic exercise without direct community engagement - what it can honestly offer is a spatial argument, not a solution.

Simone, A.M. (2004) 'People as Infrastructure: Intersecting Fragments in Johannesburg', Public Culture, 16(3), pp. 407–429

The building houses a carpentry workshop and vocational facility where Structural Insulated Panels can be manufactured, stored, and sold within the community. Keeping production local keeps knowledge local - residents as producers of their built environment.

The layout balances workshop function with civic openness. Natural light floods the interior while sightlines across shared spaces foster visibility and exchange. The workshop faces outward, making the process of making visible.

The building is assembled from the same SIP system it distributes, following a modular assembly principle that makes the construction method legible and replicable. The architecture embodies the system.

Massing and Design Process

Structural Insulated Panels (S.I.P.s)

Structural Insulated Panels offer meaningful performance advantages over corrugated iron and timber offcuts: superior thermal insulation, fire resistance, and structural integrity. Their modular nature supports incremental construction - panels added as resources become available, enabling phased improvement over time.

The SIP system is adapted for local manufacture and autoconstruction, prioritising accessibility over finish. The goal is a transferable process that builds technical capacity within the community and remains open to local adaptation.

The work is understood as a spatial argument: that architecture's role in contexts of inequality might be to redistribute technical knowledge and productive capacity, rather than deliver finished form.

Previous
Previous

Warrior Season 3 | 2022

Next
Next

Imizamo Yethu Interface | 2020